Immobilienbild
Objekt des Tages

WO LUXUS UND NATUR IN SÜDTIROL EINS WERDEN - IHR LUXUS RETREAT FÜR WEIN- UND AUTOLIEBHABER

  • 39011 Lana
  • 4 Badezimmer
  • 11 Zimmer
  • 590 m² Wohnfläche
  • 3.164 m² Grundstücksgröße

3.500.000 €

Datenblatt

ImmoNr
2020
Nutzungsart
Wohnen
Vermarktungsart
Kauf
Objektart
Haus
Objekttyp
Villa
Land
Italien
Schlafzimmer
6
Anzahl sep. WC
3
Befeuerung
Öl, Holz
Heizungsart
Ofenheizung, Heizkörper, Fußbodenheizung
Etagenzahl
4
Kabel Sat TV
Ja
Terrasse
Ja
Käufer-Provision
4% + MwSt.
Art. 79
Nein
Anzahl Terrassen
1
Katasterfläche
1.191

Beschreibung

Eingebettet in die idyllische Landschaft Südtirols, umgeben von Sonne, Ruhe und Natur, präsentiert sich diese außergewöhnliche Villa als ein Ort von besonderer Qualität. Ein Anwesen für Menschen, die das Besondere schätzen – sei es als stilvolles Familiendomizil, exklusiver Rückzugsort oder repräsentatives Feriendomizil.

Die Villa vereint auf harmonische Weise luxuriösen Wohnkomfort mit alpiner Behaglichkeit und mediterraner Leichtigkeit. Großzügige Räume, eine durchdachte Architektur und das Zusammenspiel aus Licht, Materialien und Natur schaffen eine Atmosphäre, die gleichermaßen einladend wie inspirierend ist.

Dieses Haus ist nicht nur ein Ort zum Wohnen, sondern ein Ort zum Ankommen. Ein Refugium, das Privatsphäre, Lebensqualität und zeitlose Eleganz in sich vereint – für all jene, die in Südtirol mehr suchen als nur ein Zuhause.

Verkauf mittels privatem Bieterverfahren.

Ausstattung

Die Villa – Wohnen mit Stil auf vier Ebenen
Mit einer oberirdischen Brutto-Wohnfläche von ca. 590 m² und einer unterirdischen Bruttonutzfläche von ca. 1.055 m² erstreckt sich dieses Anwesen über vier Etagen, verbunden durch einen Aufzug von der Garage bis ins Dachgeschoss. Im Erdgeschoss, vor der Eingangstür befindet sich eine Einliegerwohnung mit separatem Zugang – ideal für Gäste oder Personal.

Erdgeschoss:
Ein großzügiger Eingangsbereich empfängt Sie mit klassischer Eleganz, während das Büro für Geschäftskunden direkt zugänglich ist. Das helle Wohnzimmer mit Kamin bildet das Herzstück des Hauses und lädt zum Verweilen ein. Die Wohnküche mit angrenzender Speis bietet reichlich Platz und öffnet sich über große Schiebetüren zur Terrasse.

Eine Tiroler Stube verleiht dem Haus authentische Gemütlichkeit. Ein Tages-WC sowie ein Wirtschaftsraum mit Außenzugang runden das Raumangebot funktional und komfortabel ab.
Durch die großen Glasfronten öffnet sich der Blick in den wundervollen Garten mit Seerosenteich, Outdoor-Pool und überdachter Terrasse – ein Ort der Ruhe, des Genusses und der Inspiration.
Hier finden Sie auch Gemüsebeete für den Eigenanbau, eine Holzlager mit Geräteraum sowie eine großzügige Einfahrt mit automatischem Tor und mit mehreren Stellplätzen, sowie die Zufahrt zur Garage und Weinkeller.



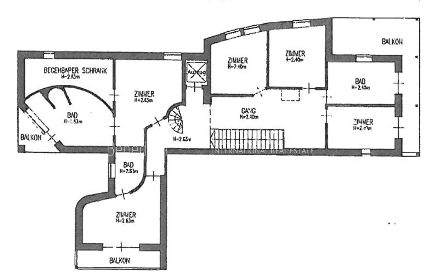
Obergeschoss:
Das Obergeschoss bietet Raum für Familie und Gäste: Ein großzügiger Vorraum führt zu den vier Schlafzimmern – jedes mit eigenem Charme, teilweise mit Balkonzugang und Bad en suite.
Das Master-Schlafzimmer mit Walk-in-Closet, privatem Badezimmer und Balkon bildet eine luxuriöse Suite für höchste Ansprüche.

Dachgeschoss:
Über eine Wendeltreppe gelangen Sie in das Dachgeschoss, wo sich ein weiteres, helles Zimmer mit kleinem Balkon befindet – ideal als Atelier, Bibliothek oder Yoga-Raum mit Aussicht auf die Natur.

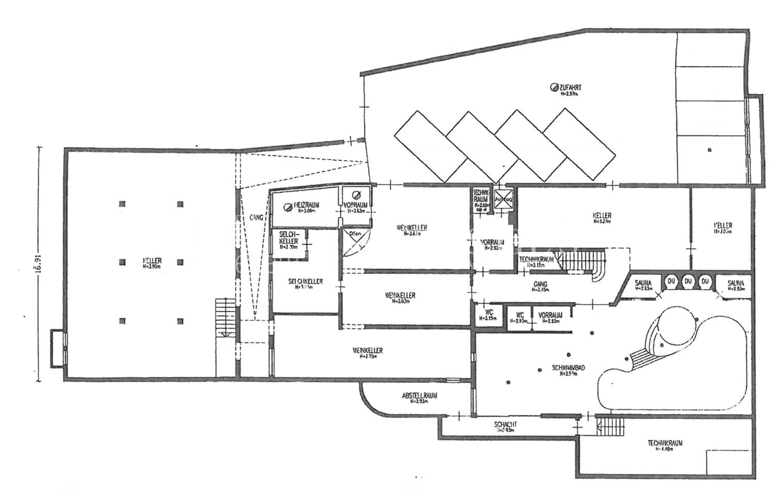
Kellergeschoss – Luxus, Leidenschaft & Lifestyle
Das Untergeschoss ist ein wahres Highlight für Genießer und Connaisseure.
Hier finden Sie eine großzügige Garage mit Platz für bis zu 8 Autos – ein Paradies für Liebhaber edler Fahrzeuge.
Für Weinfreunde bietet das Haus mehrere Weinkeller, ideal zur Eigenverarbeitung oder Lagerung edler Tropfen. Ein traditioneller Selchkeller für Speck sowie weitere Keller- und Aufenthaltsräume mit Billardtisch unterstreichen den einzigartigen Charakter des Hauses.
Die Wellnessanlage mit Indoor-Pool, Whirlpool, finnischer Sauna, Dampfsauna, Aromadusche, Fitnessbereich und Ruheraum schafft einen privaten Spa-Bereich auf höchstem Niveau – perfekt für Entspannung nach einem Tag in der Natur.

Technische Highlights & Ausstattung
Aufzug (von UG bis DG)
Alarmanlage, Musikanlage & zentrale Staubsaugeranlage
Solarpaneele auf dem Dach
Hochwertige Materialien & zeitlose Architektur
Gesamtparzellenfläche: ca. 3.164 m²

Energieausweis

wesentlicher Energieträger
Öl
Zustand
Gepflegt

Lage

Völlan ist eine auf etwa 700 Meter Höhe gelegene Ortschaft mit etwa 1100 Einwohnern, oberhalb der Marktgemeinde Lana (Südtirol). Das Dorf liegt westlich erhöht über dem Etschtal nahe der Stadt Meran.
Völlan mit seinem alpin-mediterranen Klima hat die Vorteile einer beschaulichen, ländlichen Umgebund und ist ein idealer Ausgangspunkt für Wanderungen in Südtirol.
Die Marktgemeinde Lana, die größte und älteste Apfelanbaugemeinde Südtirols, bietet hohe Lebensqualität und ein vielfältiges Freizeit- und Kulturangebot, das bei Einheimischen ebenso beliebt ist wie bei Gästen.

Sonstiges

Alle Angabe sind indikativ und können jedezeit und ohne Vorankündigung, Abänderungen unterliegen.

Immobilie anfragen

* Pflichtfelder

Bitte füllen Sie dieses Feld aus.
Bitte füllen Sie dieses Feld aus.
Bitte füllen Sie dieses Feld aus.
Bitte füllen Sie dieses Feld aus.
Bitte füllen Sie dieses Feld aus.
Bitte füllen Sie dieses Feld aus.
Bitte füllen Sie dieses Feld aus.
Bitte geben Sie eine gültige E-Mailadresse ein.
Bitte klicken Sie dieses Kästchen an, um fortfahren zu können.
Bitte füllen Sie dieses Feld aus.